



Rex Residency in Thane Vartak Nagar by Ekdanta Developers
Project
Rex Residency
Developer
Ekdanta Developers
Location
Thane West
RERA
P51700033974
Launch Date
2022
Current Status
Ongoing
Possession
2028
Typology
1 & 2 BHK
Price
₹69+ Lacs onwards
Towers
1
Floors
29
Total Units
210 units
Land Parcel
~2.86 Acres
Carpet Area
398+ SqFT
Property Highlights Of Rex Residency
Project Features
- Automated parking tower system for 4-wheelers.
- Lifetime open views with green surroundingsVaastu Compliant Homes.
- Grand entrance lobby and contemporary elevation.
- Crèche for children and fully-equipped gymnasiumElite Gated Community.
- Sustainable architecture with energy-efficient solutions.
Features & Amenities At Rex Residency Thane
- Basketball Court: A well-maintained court for residents to enjoy active leisure and friendly competitions in a safe environment.
- Jogging Track: Dedicated track surrounded by greenery for morning and evening runs, promoting a healthy lifestyle.
- Billiards Table: Indoor gaming facility for entertainment and social interactions among residents.
- Swimming Pools: Spacious pools designed for relaxation and recreation, suitable for all age groups.
- Gymnasium: Fully-equipped fitness center to cater to high-tech workout routines, ensuring residents maintain wellness.
- Tennis Court: Professional-standard court for sport enthusiasts, encouraging outdoor activity and community engagement.
Location & Connectivity of Rex Residency Vartak Nagar
Major Highways and Expressways
- 5–8 Mins. – Eastern Express Highway
- 15–20 Mins. – Thane Station (4.3 km approx.)
Air Service
- 35–45 Mins. – Chhatrapati Shivaji Maharaj International Airport
Metro and Rail Connectivity
- 5 Mins. – Upcoming Cadbury Junction Metro Station (Line 4/4A, Phase-1 target Dec 2025)
- 15–20 Mins. – Thane Railway Station
Upcoming Infrastructure Developments
- Metro Line 4 / 4A (Wadala–Kasarvadavali–Gaimukh corridor)
– The first priority section (Gaimukh to Cadbury Junction, ~10.5 km) aims to have ~4 stations ready by December 2025, full stretch by April 2026.
– Complete operation (all phases) expected by 2027.
Shopping & Entertainment Hub
- 4–5 Mins. – Yeoor Hills and Sanjay Gandhi National Park
- 6–8 Mins. – Korum Mall, Viviana Mall, DMart Manpada
- 6–10 Mins. – Upvan Lake, Tikujiniwadi
Educational and Healthcare Facilities
- 4–7 Mins. – Schools: RJ Thakur College, Singhania School, Little Flower High School, SVPM Sanskar Public School, Vidyaniketan English School, Bharatratna Indira Gandhi School
- 4–8 Mins. – Hospitals: Jupiter Hospital, Bethany Hospital, Siddhivinay Hospital, Lifeline Hospital Thane
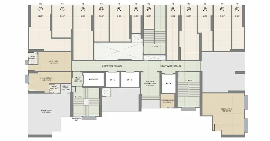
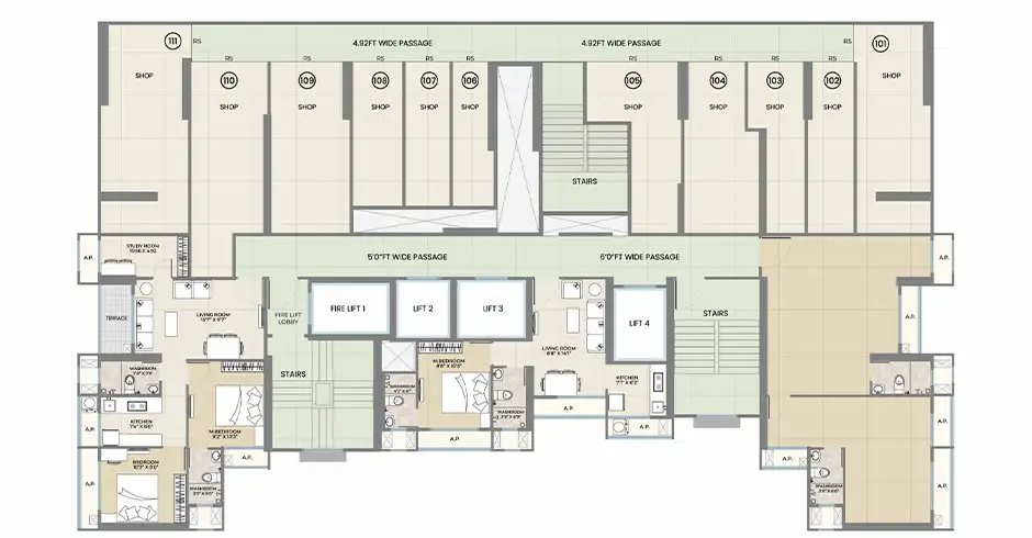
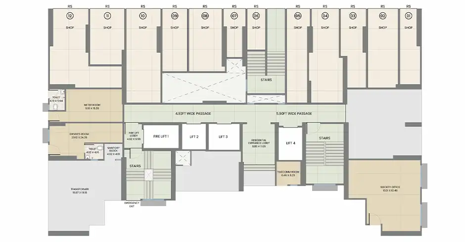
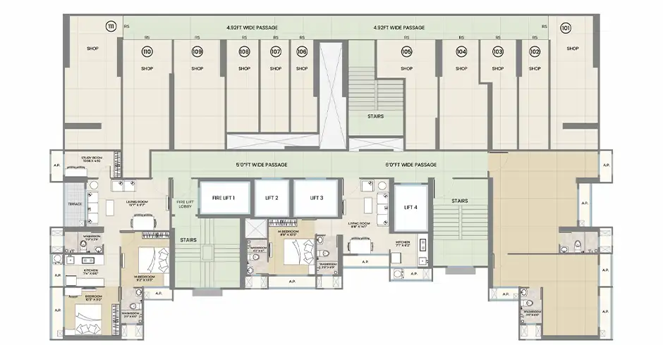
Rex Residency Floor Plans & Pricing
Config.
Carpet Area
Price
1 BHK
398+ SqFt
₹69+ Lacs
2 BHK
650+ SqFt
₹1.14 Cr+
Videos & Photo Gallery Of Rex Thane West
Why To Invest With Rex Residency Thane West
Key Highlights Of Rex Residency
- RERA-registered and legally compliant project ensuring ownership security.
- Delivered by Ekdanta Developers, a trusted name with 17+ years of experience.
- Handpicked amenities including gymnasium, swimming pool, basketball and tennis courts, and jogging tracks.
- Strategically located near workplaces, educational institutions, healthcare, and shopping destinations.
- Sustainable and modern design with landscaped surroundings and automated parking for residents’ convenience.
- Upcoming infrastructure like metro connectivity and highway expansions enhancing accessibility and long-term value.
FAQs Of Rex Vartak Nagar
A: Yes, Rex Residency is officially RERA-registered (RERA No: P51700033974), ensuring legal compliance, transparency, and adherence to construction timelines.
A: Nearby educational institutions include RJ Thakur College, Singhania School, Little Flower High School, SVPM Sanskar Public School, and Vidyaniketan English School, all within 4–7 minutes by road.
A: Hospitals such as Jupiter Hospital, Bethany Hospital, Siddhivinay Hospital, and Lifeline Hospital Thane are located within 4–8 minutes of the project.
A: Ekdanta Developers, with 17+ years of experience, is known for delivering quality, sustainable, and legally compliant residential projects in Thane.
A: Rex Residency offers 1 & 2 BHK flats and residences with well-ventilated interiors, optimized layouts, and carpet areas starting from 398+ SqFt.
A: Rex Residency has excellent connectivity: 5 mins to Eastern Express Highway, 16 mins to Thane Railway Station, and 5 mins to the upcoming Cadbury Junction Metro Station.
A: The project is currently ongoing, with a scheduled possession year of 2028.
A: Key amenities include a fully-equipped gym, swimming pools, basketball and tennis courts, jogging tracks, crèche, landscaped gardens, and automated parking tower systems.











